The site with real estate ads in your region -
Sale - Rental - Holiday rental
14 octobre 2025
Quick search


Apartments Montbazin

68 advertisements available today at 10:42 on Dmaisons-languedocroussillon.com
in Montbazin
68 available advertisements
last advertisement added on 2022, november wednesday 23
Create an e-mail alert
Send to a friend
Print information
Sort by
descending
Site 0 on ... 0
 
RECEIVE ALL THE NEW ADVERTISEMENT
IN REAL TIME
1 AD similar search criteria
You can extend your search !

Apartment Montbazin
Sale
Montbazin (34)
Hérault
Very good opportunity in the future completion of montbazin: in a new residence and secured superb apartment of 65m2 type 3 includes a living room with fitted kitchen (30m2) opening onto a terrace, 2 large bedrooms of 12m2 each on giving terrace, toilet and shower room. 2 secured parking spaces. air conditioning in living room and bedroom. reduced notary fees be missed! complete dossier on request mandate: lot ref: 10343
Apartment Montbazin
Sale
Montbazin (34)
Hérault
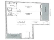
Montbazin (herault – languedoc roussillon). an apartment with a living room, bathroom and a mezzanine that bestows a bedroom. there is also a garage on the goround floor and the lot is suitable for adding high ceilings. for more information about this property or to see our 30000+ properties in france go to our website www.capifrance.co.uk estate agency capi france ref 193501 or contact our english speaking staff on 00 33 499 61 44 72 e-mail [email protected]. we look forward to finding your dream home! mandat : 193501 ref : 34093203681

SEARCH
Advertisements *
Properties *
1 selection(s)
Rental *
Click to modify your place of location
Extend to near
Optional criteria
Price
Living area
Surface area
Rooms
Bedrooms
Date of advertisement
RECEIVE ADVERTISEMENT
IN REAL TIME
Find the all latest real estate advertisements in your e-mail inbox.
ADVERTISEMENT